Townhouses for Rent in Steubenville OH | Country Club Hills
Featuring the Scioto Townhomes in Country Club Hills

Currently Available Scioto Townhomes in Country Club Hills Steubenville, OH
Spacious, Affordable Two-Bedroom Townhouses in Steubenville’s Country Club Hills
Welcome to the Scioto Townhouses for rent in Steubenville’s Country Club Hills — a quiet, residential community designed for comfort, convenience, and modern living. Whether you’re just starting out, a student looking for off campus housing near Franciscan University, raising a family, or downsizing, our townhomes offer the perfect balance of privacy and community. Our Scioto Townhomes Steubenville residents love feature renovated interiors, private entrances, and modern updates throughout.
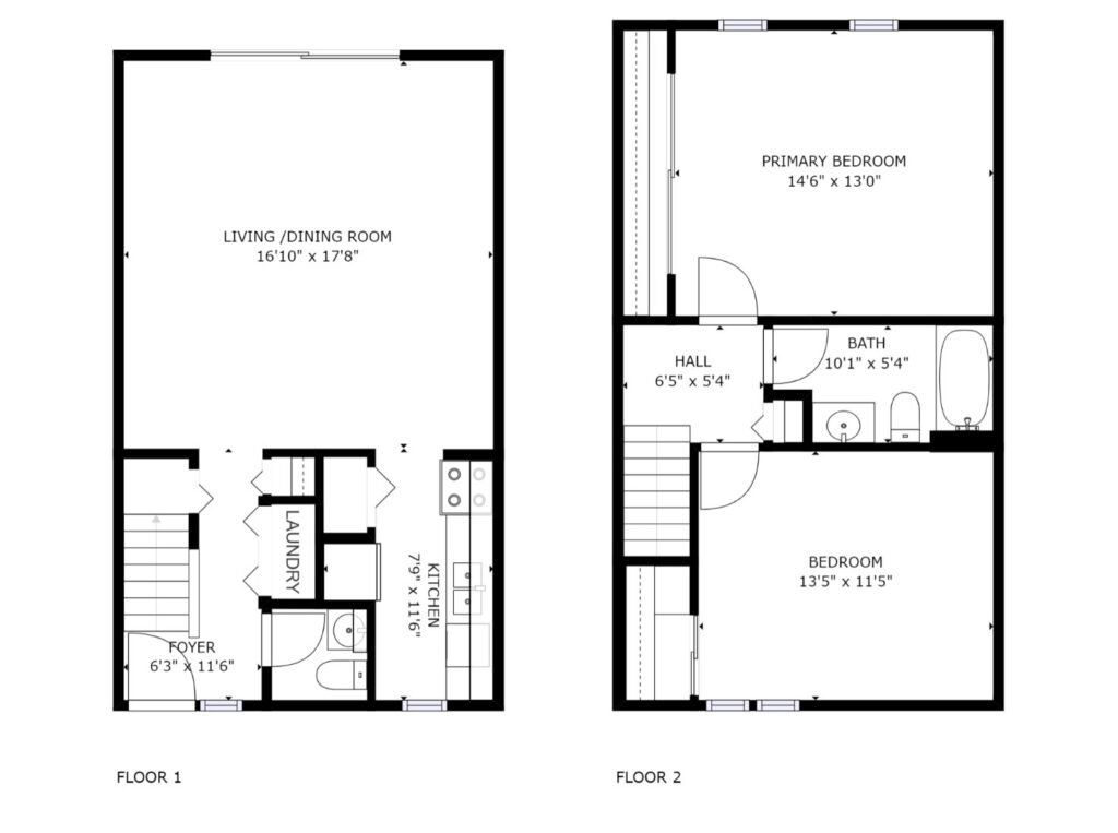
Townhomes Features & Layout
- Two-story, two bedroom, one and half bath layouts with private entrances
- Bright, open floor plans
- Fully equipped kitchens with modern appliances
- Large bedrooms with generous closet space
- In unit laundry hookups
- Central heating and air conditioning
- Private patios for outdoor living
Amenities at Scioto Townhomes Steubenville
Interior Amenities
- Renovated kitchens with modern cabinetry
- Updated bathrooms
- Spacious living and dining areas
- Private entrances for every unit
- Central air and efficient heating
- Luxury vinyl plank or updated flooring
- Fresh paint and clean, modern finishes
- Washer/dryer hookups
Community & Location Amenities
Located in Steubenville’s desirable Country Club Hills neighborhood
- Safe, quiet, residential setting
- Off-street parking
- Quick access to SR-7 and local shopping
- Close to Franciscan University (ideal for off-campus housing)
- Professionally managed by Orecchio Properties
- Online maintenance requests and rent payment portal
- Next to the Country Club Garden Apartment community
- Next to the Pine Valley One Level Apartment Community.
- See more information about all of the apartments and townhomes in Country Club Hills Neighborhood
Ideal Steubenville Location
Situated in the desirable Country Club Hills area, the Scioto Townhouses keep you close to everything:
These townhomes are conveniently located 4 miles from Franciscan University, 2 miles to Wintersville, OH, 23 miles from Cadiz, 27 miles from Wheeling, 35 miles from St. Clairsville, 43 miles from Pittsburgh, and 30 miles from Pittsburgh International Airport. They are also just 1 mile from the Fort Steuben Mall, Walmart Supercenter, and numerous restaurants and shopping options.
- Minutes from local schools, shops, and restaurants
- Minutes from Franciscan University
- Easy access to US-22 and SR-7 for commuters
- Parks, Steubenville Country Club, and recreational opportunities nearby
Why Choose Scioto Townhomes?
Our residents love the balance of spacious living, affordability, and convenience. With professional management and a welcoming neighborhood atmosphere, you’ll feel at home from day one. If you’re searching for Scioto Townhomes Steubenville renters recommend, these renovated units offer private entrances, modern interiors, and a peaceful setting in the heart of Country Club Hills. When you’re ready to move forward, our simple online Application Process makes applying fast and convenient.
Scioto Townhomes in Steubenville – Photo Gallery















Looking for a different layout or location? Explore our related rental communities below.
